產品定制服務
Product customization services專屬方案服務
Exclusive solution service產品安裝服務
Product Installation Service24小時售后服務
24-hour after-sales service






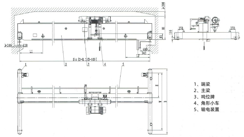
本文相關標簽: 低凈空電動懸掛起重機|低凈空起重機|低凈空懸掛起重機|電動懸掛起重機|低凈空電動懸掛行車

定制咨詢
如果您有相關需求,您可以留言咨詢我們,也可以電話咨詢:18238777579,我們將24小時提供免費回電!返回頂部
18238777579
掃一掃 關注我們